HK-5C型小車是水平角焊結構的焊接自動裝置。裝置運行速度均勻,可實現精密焊接。非焊接狀態下的小車行走速度為最大值(1900mm/min)。★注意:由于焊接小車向氣保焊機是常通信號,且焊接不可避免地留有殘端,故設置和焊接時焊機的自保回路開關必須關閉……OFF。如果設置成開(ON),則焊接小車停止行走,電弧卻不會熄滅。便攜式手柄,方便移動裝置。設有收弧裝置,收弧時間調節范圍在0~7 S。可以向左右兩方向焊接;小車兩端安裝有感應停止開關,焊接結束后小車可以自動停止,便于一個工人同時操縱多臺設備。安裝有永久磁鐵,避免小車脫離焊接線的現象。體積小、重量輕,移動和安裝都很方便。

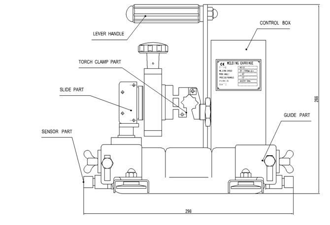
HK-5C由小車本體,X-Y滑塊,導向輪,焊槍夾具、感應開關停止開關,磁控手柄,控制箱等部件組成。
1)驅動部分:是驅動小車的裝置,以四個橡膠輪,錐齒輪,鏈條,鏈輪組成。
2)SLIDE PART:X-Y滑塊。是調節焊槍位置的裝置,焊接當中可以進行上下左右的微調。
3)TORCH CLAMP PART: 焊槍夾。是固定焊槍的裝置,維修及調整是方便焊槍的拆卸。
4)GUIDE PART: 導向輪。 沿著母材面滾動,引導準確焊接部位的裝置。
5)LEVEL HANDLE: 磁控手柄。方便于安裝小車和移動。
6)CONTRAL BOX: 控制箱。可以調節小車的所有動作,詳細內容參考“控制面板說明”
7)磁鐵:安裝有永久磁鐵,避免了小車脫離焊接線的現象。
8)SENSOR PART:感應停止開關。焊接到工件末端時被觸動后小車自動停止工作。
適用環境

主要技術參數
|
1.外形尺寸 |
320×230×290 mm |
|
|
2.機器重量 |
8.3Kg |
|
|
3.輸入電壓 |
AC220V 50HZ |
|
|
4.驅動方式 |
橡膠輪四輪驅動 |
|
|
5.焊接速度 |
150~1900mm/min |
|
|
6.焊槍調 整范圍 |
上下 |
60mm |
|
前后 |
60mm |
|
|
作業角 |
±45° |
|
|
進行角 |
10° |
|
裝箱清單
將裝置小心地從包裝箱中取出。首先,檢查各部件以確認其完整。各包裝組件中包含下列零部件:
|
1.主機 |
1臺 |
|
2.電源線(220V/20M) |
1根 |
|
3.保險絲(220V/2A) |
2只 |
|
4.內六角扳手 |
1套 |
|
5.2P焊槍控制線500mm |
1根 |
|
5.說明書,合格證 |
各1份 |